Zastosowanie:Wariant lewar standardowy z klasyczną korbą, korbą z grzechotką i korbą z grzechotką i oraz zapadką
- do podnoszenia i manewrowania ładunkami różnych typów
- do prac montażowych wszelkiego typu, zwłaszcza w budownictwie
- możliwe wykonanie do zastosowania w środowisku zagrożonym wybuchem (oznaczenie NEXP)
Właściwości:
- solidna i trwała konstrukcja
- podnoszenie (rozciąganie) przez główną lub boczną stopę
- niezawodne utrzymanie ciężaru w dowolnej pozycji dzięki wbudowanemu hamulcowi w korbie ręcznej
- dopasowana do możliwości człowieka siła robocza na korbie ręcznej
- zwiększony komfort obsługi w wykonaniu z korbą z grzechotką (RK) lub korbą z grzechotką i zapadką (RKP)
- niewielkie wymagania związane z konserwacją
- obudowa mechanizmu przekładni (przy nośności 2,5t – 10t) wyposażona jest w korek umożliwiający smarowanie przekładni bez konieczności zdejmowania obudowy
- stopa podnośnika wyposażona w otwór pomocniczy – zapewnia łatwiejsze użycie podnośnika przy rozciąganiu w położeniu poziomym na wysokość nad głową.
- Otwór w stopie umożliwia łatwe zamocowanie podstawy podnośnika za pomocą np. śruby lub gwoździa bez konieczności pracy z pomocnikiem
- spełnia wymagania ČSN EN 1494
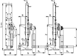
| Typ | Nośność (t) | Siła robocza na korbie | Wymiary główne (mm) | Ciężar (kg) | ||||||||
|---|---|---|---|---|---|---|---|---|---|---|---|---|
| Q1 | Q2 | a | b | b1 | q | h min. | L min. | r | Z | |||
| 15-00 | 2,5 | 1,75 | 380 | 175 | 210 | 200 | 60 | 75 | 735 | 250 | 345 | 14,7 |
| 15-00-RK | 15,5 | |||||||||||
| 15-00-RKP | 380 1) 230 2) | 230 | 16,3 | |||||||||
| 15-00 | 5 | 3,5 | 550 | 200 | 240 | 200 | 70 | 85 | 765 | 300 | 360 | 22,3 |
| 15-00-RK | 240 | 22,8 | ||||||||||
| 15-00-RKP | 550 1) 330 2) | 250 | 23,4 | |||||||||
| 15-01 | 10 | 7 | 540 | 245 | 295 | 200 | 80 | 90 | 795 | 300 | 345 | 38,6 |
| 15-01-RK | 295 | 39,1 | ||||||||||
| 15-01-RKP | 540 1) 320 2) | 305 | 39,7 | |||||||||
| 15-01 | 16 | 11 | 730 | 280 | 315 | 280 | 77 | 160 | 900 | 400 | 320 | 65 |
| 15-01-RK | 65 | |||||||||||
| 15-01-RKP | 970 1) 490 2) | 370 | 300 | 65 | ||||||||
| Z23 | 20 | 14 | 800 | 325 | 330 | 280 | 77 | 150 | 960 | 400 | 300 | 90 |
1) – rękojeść w położeniu „korba“ 2) – rękojeść w położeniu „dźwignia“






